Carrier Model Number Nomenclature Inspecting HVAC Systems

Carrier 48tj. Carrier Air Conditioner Control Panel Instructions Owner Manuals unit 48tj nominal tons standard cfm net cooling capacity (btuh) total kw seer† sound rating belt drive direct drive (bels) 004 3 1200 35,000 4.0 10.0 9.7 8.2 005 4 1600 47,000 5.5 10.0 9.7 8.2 006 5 2000 57,000 6.7 10.0 9.7 8.2 unit 48tj nominal tons standard cfm net cooling capacity (btuh) total kw eer sound rating (bels) iplv 007 6 2100. †Single phase is available on 5-ton and smaller units

Carrier_Features
Carrier_Features from carrierrates.com

Also for: 48tje, Tjf004, Tje, Tjf005-007, 48tje004, 48tjf004, 48tjd005, 48tjd006, 48tjd007, 48tje005,. All 48TJ standard units are designed for natural gas, but an accessory LP (liquid propane) conversion kit is available

Carrier_Features

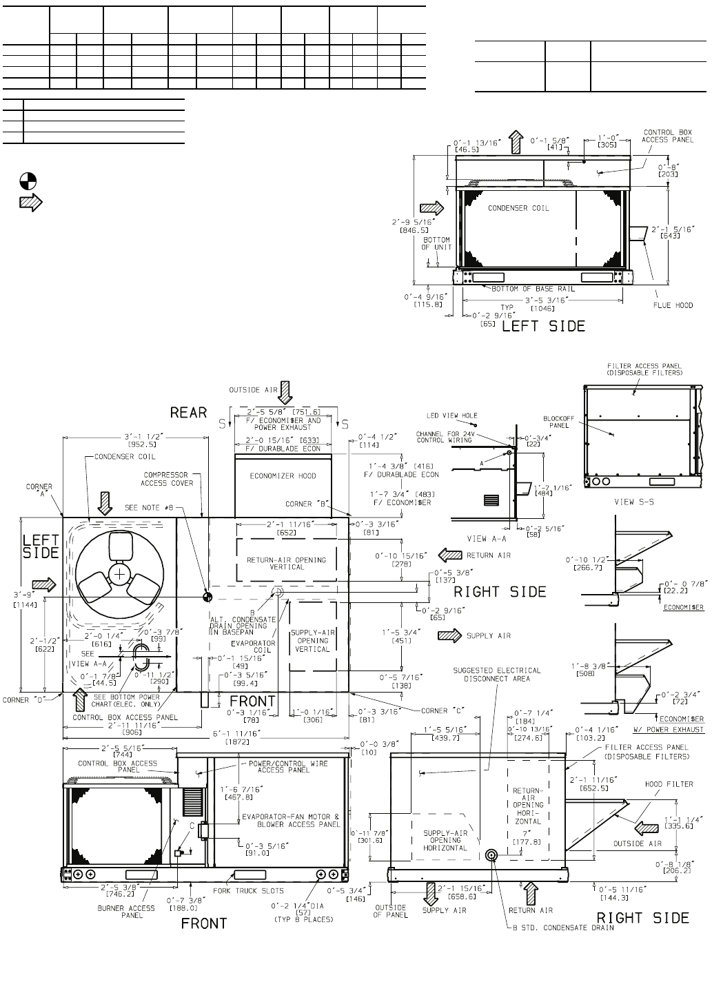
Tailored specifically for commercial applications, these units provide a blend of efficiency, durability, and reliability, making them suitable for a variety of settings. Outdoor rooftop- or slab-mounted, electrically controlled. Guide specifications — 48TJ008-014 Packaged Rooftop Gas Heating, Electric Cooling Unit — Constant Volume Application HVAC Guide Specifications Size Range: 21.5 to 35.9 kW (6.1 to 10.2 Tons) Nominal Cooling Carrier Model Number: 48TJ Part 1 — General 1.01 SYSTEM DESCRIPTION A

48TJ660005 Carrier 48TJ660005 Heat Exchanger 48TJ660005. All 48TJ standard units are designed for natural gas, but an accessory LP (liquid propane) conversion kit is available View and Download Carrier 48TJD installation, start-up and service instructions manual online

Carrier Model Number Breakdown Chart. *Refer to 48TJ price pages for 48TJ FIOP code table Fast shutdown is a certainty since the sensor reacts quickly to any