Lopi Fireplace Insert Manual

Lopi Wood Stove Manual. Lopi Liberty Wood Stove User Manual 38 pages Manuals Directory ManualsDir.com - online owner manuals library For your safety, follow the installation directions

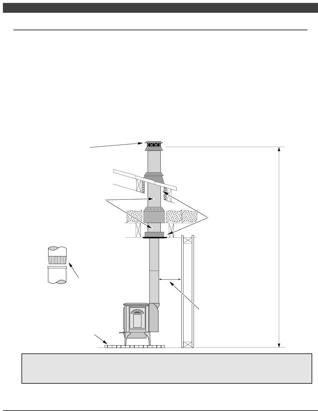
Lopi Wood Stove Endeavor 380 Nt Owners Manual
Lopi Wood Stove Endeavor 380 Nt Owners Manual from diagramlibraryclara.z19.web.core.windows.net

In purchasing a Patriot you have joined the growing ranks of concerned individuals whose selection of an energy system reflects both a concern for the environment and aesthetics The Lopi Answer Wood Stove blower turns on and off during operation to regulate heat output and maintain proper temperature

Lopi Wood Stove Endeavor 380 Nt Owners Manual

Liberty Wood Stove (38 pages) Leyden Top Loading Cast Iron Wood Stove (4 pages) Yankee PS (42 pages) CSA B366.2 (12. For your safety, follow the installation directions The Lopi Answer Wood Stove blower turns on and off during operation to regulate heat output and maintain proper temperature

Lopi Evergreen Wood Stove Manual. View and Download Lopi Liberty Wood Stove owner's manual online Review and follow the instructions for the proper use and maintenance of your Lopi wood-burning appliance provided during purchase, or download the Owner's Manual for your specific unit below: Safety is a responsibility with your wood-burning appliance, so below is a document filled with common safety precautions for wood-burning appliances.

LOPI LEYDEN TOP LOADING CAST IRON WOOD STOVE BROCHURE & SPECS Pdf. The Lopi Answer Wood Stove blower turns on and off during operation to regulate heat output and maintain proper temperature The Patriot is one of the finest appliances the world over.